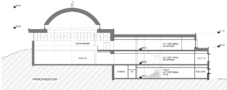
Skärholmens islamiska kulturförening/Islamiska Stiftelsen i Skärholmen har sedan före 2008 planerat bygga en av de största moskéer som någonsin byggts i Skandinavien och samlar in medel för bygget. Moskékomplex som beräknas kosta runt 80 miljoner kronor blir på 3.000 kvadratmeter och byggs på en tomt invid Skärholmsvägen (2008-02230) strax öster om Skärholmens centrum. Den nya moskén planeras att infogas i bergssluttningen, med två suterrängvåningar mot Skärholmsvägen. Byggnaden är uppdelad i två delar. Den södra delen innehåller en sal för bön vriden mot Mecka som kröns av en kupol. Den norra delen, som i sin tur är uppdelad i flera delvolymer, innehåller övriga verksamheter. Norr om byggnaden byggs ett angöringstorg med cirka 20 parkeringsplatser. Platsen var tidigare obebyggd och bestod till hälften av en bergssluttning och hälften av parkmark med öppna gräsytor och gång- och cykelvägar. Staden bidrar med sammantaget 13,3 miljoner kronor för kringliggande markarbeten.
Stadsbyggnadsnämnden beslutades 2013-09-19 att anta förslaget till detaljplan. Alla närvarande partier, C, KD, L, M, Mp, S, V röstade för att anta förslaget. Projektet vann laga kraft i mars 2014 men på grund av ekonomiska problem har det flera gånger försenats. De första spadtagen togs slutligen hösten 2023 men strax därefter avstannade projektet igen på grund av bristande finansiering. Vintern 2026 finns en grundplatta byggd.
Enligt tidskriften Kvartal har Islamiska Stiftelsen som ligger bakom moskébygget nära kopplingar till den turkiska rörelsen Milli Görus, som arbetar för att ersätta den västerländska samhällsmodellen med en islamisk samhällsordning. På moskéns hemsida står det också att majoriteten av alla muslimer vill ha sharialagar. Därmed kan det tolkas som att det också är den finansierande stiftelsens åsikt.
Eftersom projektet har haft svårigheter med finansiering och att information senare visat att det är en islamistisk organisation som står för finansieringen har Moderaterna i Stockholm under våren 2025 gått ut med att de ville pausa moskéns bygglov i väntan på regeringens utredning om utländsk finansiering av trossamfund.
Sverigedemokraterna motsätter sig bygget på grund av att finansieringen är oklar och på grund av att den islamistiska Milli Görus-rörelsen verkar stå för en stor del av finansieringen. SD har därför krävt att ärendet ska tas upp igen i Stadsbyggnadsnämnden och i Kommunfullmäktige. Men vänstermajoriteten (S, V, Mp) menar att eftersom ärendet redan vunnit laga kraft (2014) är det enbart en fråga för Stadsbyggnadskontoret och inte för nämnd och fullmäktige.
Så tycker partierna








Ömröstning 2013-09-19, SD var ej representerat i nämnden 2013
Vad tycker du?
Rösta för att se resultatet.









